
Aktueller Stand / Baufortschritte des RTL Gewinner-Hauses ein Raumwunder 90

Informieren Sie sich hier über die Baufortschritte des RTL Auktions Gewinner Hauses das von uns der Claassen Haus GmbH gebaut wird.
Mit dem Gebot von 292,40 Euro ersteigerte Herr R. bei der verrückten Auktion“ auf RTL „Wer bietet weniger", ein Massivhaus inkl. Grundstück und Baunebenkosten im Wert von 250.000 Euro.
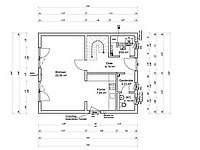
Gebaut wird das sehr beliebte Town & Country Haus Raumwunder 90 in Barum im Landkreis Lüneburg.
1. Planungsphase
2. Herr R. hat das Grundstück gekauft

3. Das Bauvorbereitungsgespräch hat stattgefunden.
4. Das Planungsgespräch findet in dieser Woche statt.
5. Der Abriss des Bestandsgebäudes wurde vom Bauherren beauftragt.























